N8 Garden

Продано

Обзор

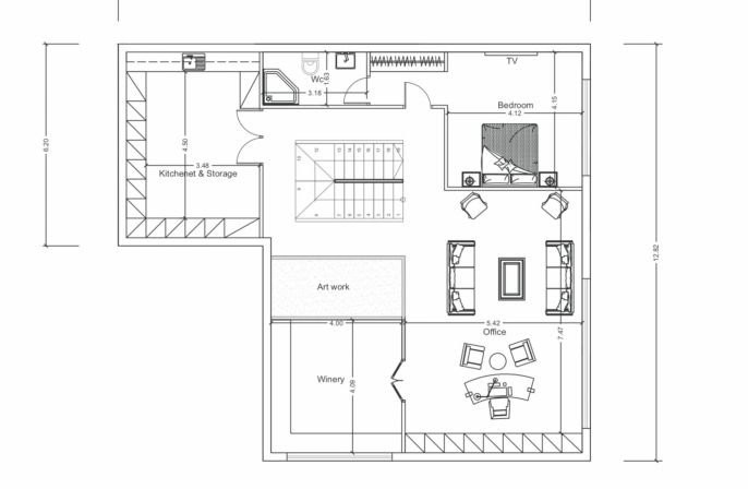
  • Спальни: 4
  • Ванные комнаты: 4
  • Полы: 3 - 4
  • Подвал: Да
  • Внутреннее Покрытие: 172.64 м2
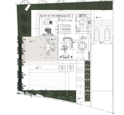
  • Крытая веранда: 32.5 м2
  • Открытая веранда: 62.35 м2
  • Крытая парковка: 14.65 м2
  • Участок: 345.6 м2
  • Статус: В процессе строительства
  • Рейтинг энергоэффективности: A
  • Единицы измерения: 2
N8 Garden – это проект, который не имеет равных, он подарит вам ощущение жизни и дома мечты в одном из лучших районов Лимасола; впечатляющий панорамный вид на море, просторный двор и Средиземноморский стиль даст вам чувства радости и уюта.

О ПРОЕКТЕ
N8 Garden – это великолепная 5-ти комнатная вилла, отличается практичностью, функциональностью, удобной планировкой, высококачественным и современным дизайном. Обладатели этой роскошной виллы оценят по достоинству потрясающие виды на море и город со всех уровней, где просторный двор даёт возможность создать потрясающий сад и воплотить ваши желания для отдыха и развлечений сохраняя приватность и домашний уют.

ДЕТАЛИ
Элегантный дизайн
Прекрасный и просторный участок
Панорамный вид на море
Высококачественный и современный стиль
Роскошный интерьер

ЭЛИТНЫЙ ОБРАЗ ЖИЗНИ
N8 Garden эта вилла уникальна в своём дизайне, не часто встретишь такой потрясающий проект. Построена на просторном участке со всеми удобствами, с учётом всех требований, из высококачественных материалов сочетая в себе все удобства.

ВАША ТИХАЯ ГАВАНЬ В ГОРОДСКОЙ СУЕТЕ, ИДЕАЛЬНОЕ МЕСТО ДЛЯ ОТДЫХА, НАСЛАЖДЕНИЯ КОМФОРТОМ И УЮТОМ.

ГОТОВАЯ ОТДЕЛКА
Полутвёрдый паркетный пол в каждой спальне
Мраморные полы и стены в туалетах и ванных комнатах
Высокие потолки (2.90-3.20)
Сейфовые входные двери
Проводка под тёплые полы
Проводка под VRV систему кондиционирования
Высококачественная сантехника от Европейских брендов
Двухслойные теплосберегающие алюминиевые оконные рамы
Высококачественная кухонная мебель и шкафы от Европейских брендов

МЕСТОПОЛОЖЕНИЕ
Агиос Афанасиос находится в 3-х километрах от исторического и бизнес центра города, один из престижных и респектабельных районов Лимасола, место, которое всегда пользуется спросом среди покупателей как местного населения, так и иностранцев. Достаточно новый микрорайон с великолепными виллами и малоэтажными квартирными комплексами, Агиос Афанасиос даст вам возможность насладиться истинным Средиземноморским стилем жизни с панорамным, завораживающим видом на море и город. В быстрой доступности к центру города, городским и частным школам и всей необходимой инфраструктуре.

ВДОХНОВИТЕСЬ ГОРОДКСИМ ШАРМОМ И РИТМОМ, N8 GARDEN –ЭТО ЭКСКЛЮЗИВНЫЙ ДИЗАЙН, НАСЛАДИТЕСЬ ЖИЗНЬЮ В ОДНОМ ИЗ ВОСХИТИТЕЛЬНЫХ МЕСТ ЛИМАСОЛА.


ПЕРИМУЩЕСТВА РАСПОЛОЖЕНИЯ
Развитая инфраструктура
Высокий инвестиционный потенциал
Тихий и жилой район
Современное и комфортное жильё
Близость с центром города и морем


ПРЕКРАСНОЕ МЕСТО ДЛЯ ЖИЗНИ, ОТДЫХА И ИНВЕСТИЦИЙ

Услуги

  • Кондиционер, Наличие
  • Закрытый комплекс
  • Отопление, Наличие
  • Парковка, Крытая
  • Солнечный водонагреватель
  • Хранилище
  • Бассейн, Личный

Характеристики

  • Система сигнализации
  • Барбекю
  • Вид на город
  • Тупик
  • Приподнятый
  • Собственная ванная комната
  • Въездные ворота, автоматические
  • Сад, большой
  • Столешницы из гранита
  • Спальня на цокольном этаже
  • Гардеробная для гостей
  • Высокие потолки
  • Инвестиционная возможность
  • Эксклюзивные характеристики
  • Мраморная лестница
  • Современный дизайн
  • Рядом с инфраструктурой
  • Рядом с парковой зоной
  • Панорамный вид
  • Тихий район
  • Арендный потенциал
  • Вид на море
  • Веранда, большая
  • Гардеробная комната

Планировка этажей

Расстояние

  • Сервисы: 1 км
  • Аэропорт: 60 км
  • Море: 4 км
  • Общественный транспорт: 500 м
  • Школы: 1 км
  • Курорт: 4 км
Kaleide Property Group
Фронт-офис

Связаться с нами

Спасибо за ваше письмо!
100% sold

Единицы измерения

Имеется в наличии     Зарезервированный     Продано
СтатусКодТипСпальниВанные комнатыБассейнВнутреннее Покрытие m2Крытая веранда m2Участок m2Общая крытая площадь недвижимости m2Общая площадь m2
1Вилла44172.6432.5345.6219.79282.14
2Вилла44Личный172.6432.5345.6219.79282.14