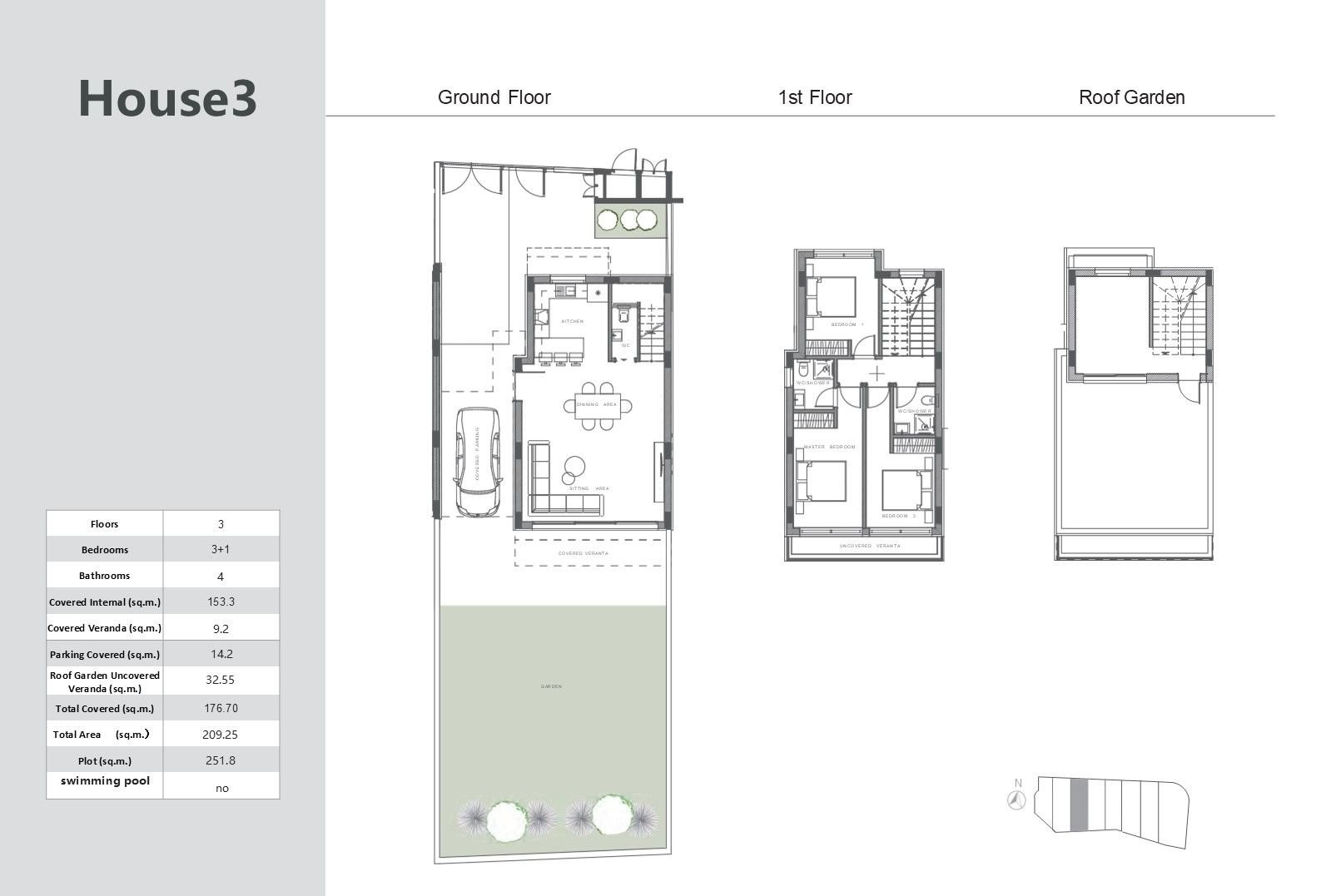
Novia Garden, House 3

От €583,700

Unit Overview

  • Спальни: 4
  • Ванные комнаты: 4
  • Внутреннее Покрытие: 153.3 м2
  • Крытая веранда: 9.2 м2
  • Открытая веранда: 32.55 м2
  • Крытая парковка: 14.2 м2
  • Участок: 251.8 м2

Обзор

  • Спальни: 3 - 4
  • Ванные комнаты: 4 - 5
  • Полы: 2 - 3
  • Внутреннее Покрытие: 124.2 - 211.35 m2
  • Крытая веранда: 0 - 18.35 m2
  • Открытая веранда: 0 - 59.4 m2
  • Крытая парковка: 14.2 - 14.75 m2
  • Участок: 197.6 - 466.55 m2
  • Статус: До начала строительства
  • Дата окончания: March 2028
  • Единицы измерения: 8

Планировка этажей

Расстояние

  • Море: 4 км
  • Школы: 3 км
Kaleide Property Group
Фронт-офис

Связаться с нами

Спасибо за ваше письмо!
50% sold

Единицы измерения

Имеется в наличии     Зарезервированный     Продано
СтатусКодТипСпальниВанные комнатыБассейнВнутреннее Покрытие m2Крытая веранда m2Участок m2Общая крытая площадь недвижимости m2Общая площадь m2
House 1Смежная Вилла44153.30197.6167.5200.05
House 2Смежная Вилла44153.39.2257.9176.7209.25
House 3Смежная Вилла44153.39.2251.8176.7209.25
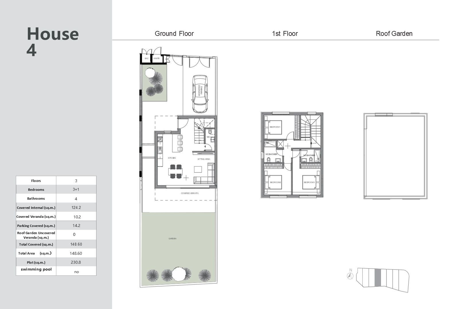
House 4Смежная Вилла34124.210.2230.8148.6148.6
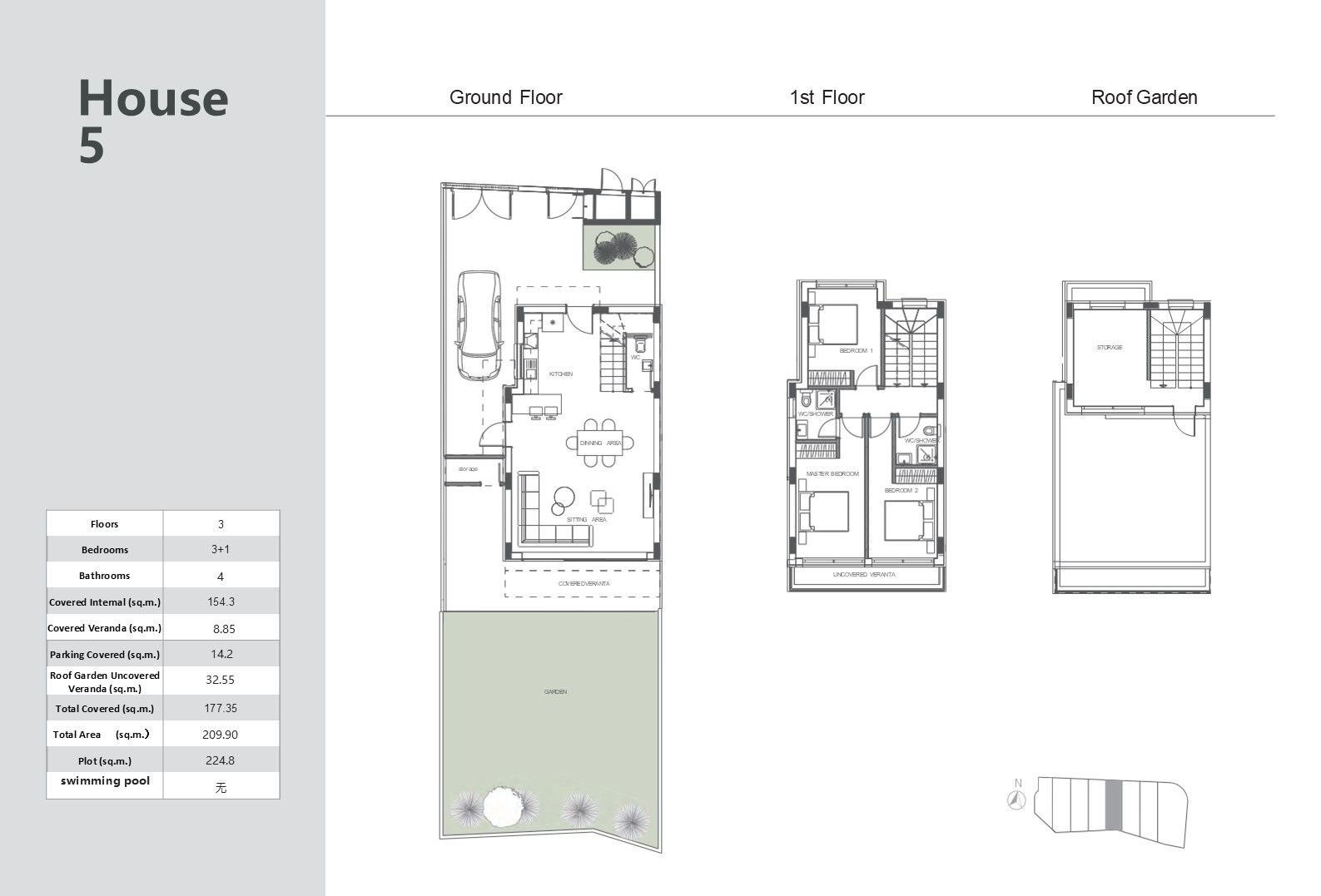
House 5Смежная Вилла44154.38.85224.8177.35209.9
House 6Смежная Вилла44153.39.4254.15176.9209.45
House 7Смежная Вилла45128.517.55273.65160.25160.25
House 8Смежная Вилла45Личный211.3518.35466.55244.45303.85